14/03/2019
|
249
|
0 Đánh giá
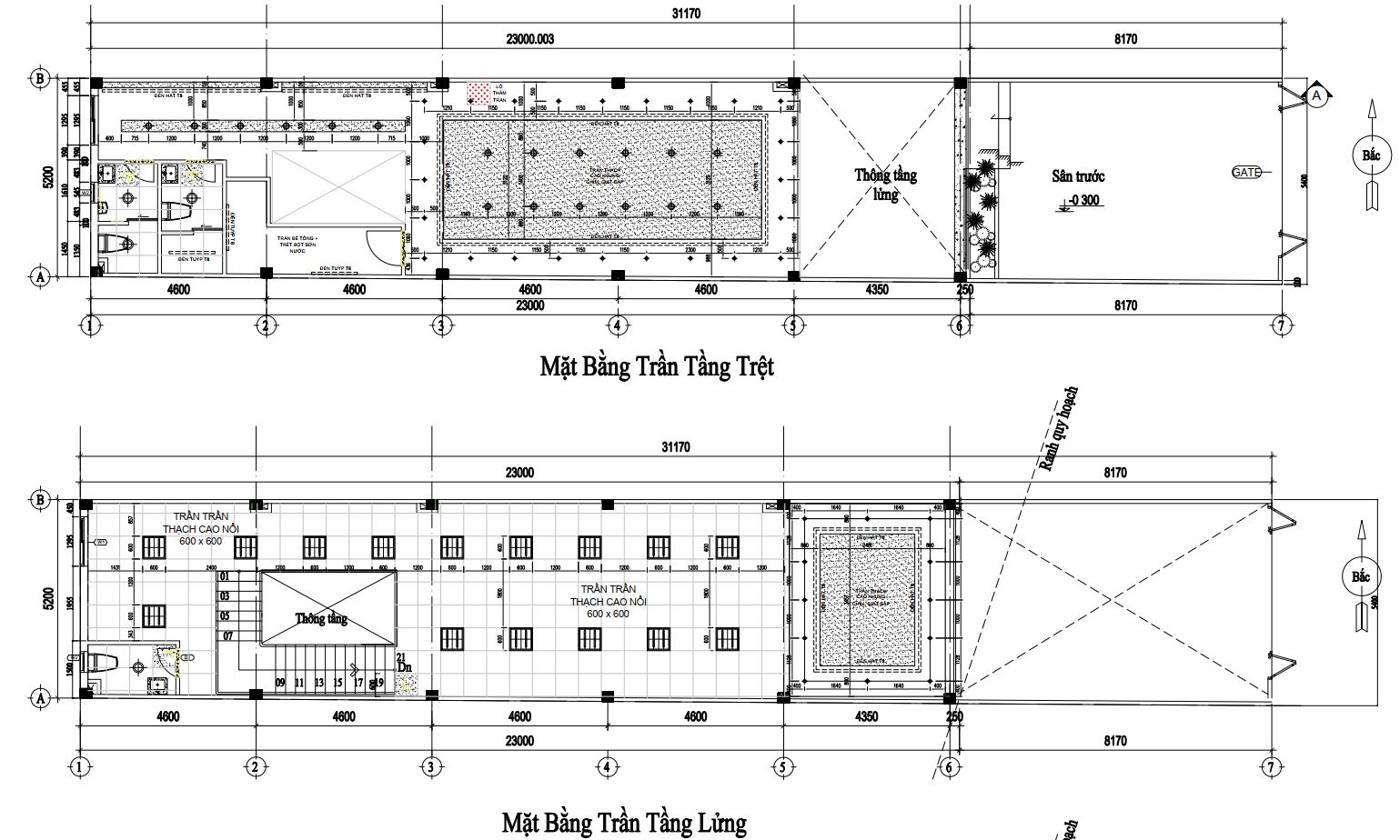
Thiết kế và thi công trần đẹp
Vùa qua HNM đã thực hiện dự án thiết kế và thi công trần nhà phố, đảm bảo mỹ thuật, chát lượng và thời gian tiến độ cho khách hàng.
Sau đây là những hình ảnh bản vẽ và thi công dự án





Xem thêm